
尺寸范围:DN65~3600mm
压力等级:0.6~1.6MPa
温度范围:-29~100℃
适用介质:水、排泥、油品等
主要材质:球墨铸铁、碳钢
制造标准:GB/T12465
法兰连接标准:GB/T9113
结构长度标准:GB/T12465
检测标准:GB/T12465
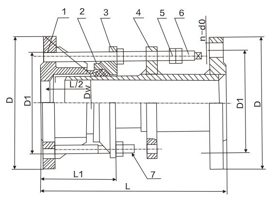
双法兰传力接头是由法兰松套伸缩接头和短管法兰、传力螺杆等构件组成。通过长螺柱将接头连接为整体,能降低被连接件的压力推力(盲板力)和补偿管路安装误差,主要解决泵、阀等设备与管道的连接。在设备、管道安装及维修时,可根据现场情况灵活调整安装尺寸。正常运行时,可以将轴向推拉力传递至整个管路,保护泵、阀的安全。该系列产品被广泛使用在城市给排水、污水处理等行业的流体输送管线上。
产品特点
1、伸缩自如、安全限位、密封可靠,装卸便捷结构合理简单紧凑、密封性能可靠;
2、不受空间影响,可在管道任意位置安装;
3、传递轴向推拉力,保护管网与设备安全;
4、连接件采用不锈钢材质,本体环氧树脂喷涂,防腐效果好。
主要零件材质
| 序号 | 名称 | 数量 | 材料 |
| 1 | 本体 | 1 | QT400-15、Q235B、ZG230-450、20 |
| 2 | 密封圈 | 1 | NBR |
| 3 | 压盖 | 1 | QT400-15、Q235B、ZG230-450、20 |
| 4 | 限位短管法兰 | 1 | Q235B、20、16Mn |
| 5 | 螺母 | 4n | Q235B、20、1Cr18Ni9Ti |
| 6 | 长螺柱 | n | Q235B、35、1Cr18Ni9Ti |
| 7 | 螺柱 | n | Q235B、35、1Cr18Ni9Ti |
主要外形连接尺寸
|
DN (mm) |
管子外径Dw |
长度 |
伸缩量 △ L |
法兰连接尺寸 |
||||||
|
L |
L1 |
0.6MPa |
1.0MPa |
|||||||
|
D |
D1 |
n-d0 |
D |
D1 |
n-d0 |
|||||
|
65 |
76 |
340 |
105 |
105 |
160 |
130 |
4-Φ14 |
185 |
145 |
4-Φ18 |
|
80 |
89 |
190 |
150 |
4-Φ18 |
200 |
160 |
8-Φ18 |
|||
|
100 |
108 |
210 |
170 |
220 |
180 |
|||||
|
114 |
||||||||||
|
125 |
133 |
340 |
105 |
105 |
240 |
200 |
8-Φ18 |
250 |
210 |
8-Φ22 |
|
140 |
||||||||||
|
150 |
159 |
265 |
225 |
285 |
240 |
|||||
|
168 |
||||||||||
|
200 |
219 |
320 |
285 |
340 |
295 |
|||||
|
250 |
273 |
370 |
335 |
12-Φ18 |
395 |
350 |
12-Φ22 |
|||
|
300 |
325 |
350 |
130 |
130 |
440 |
395 |
12-Φ22 |
445 |
400 |
16-Φ22 |
|
350 |
377 |
490 |
445 |
505 |
460 |
16-Φ26 |
||||
|
400 |
426 |
540 |
485 |
16-Φ22 |
565 |
515 |
20-Φ26 |
|||
|
450 |
480 |
595 |
550 |
610 |
565 |
|||||
|
500 |
530 |
645 |
600 |
20-Φ22 |
670 |
620 |
- |
|||
|
600 |
630 |
755 |
705 |
20-Φ26 |
780 |
725 |
20-Φ30 |
|||
|
700 |
720 |
860 |
810 |
24-Φ26 |
895 |
840 |
24-Φ30 |
|||
|
800 |
820 |
590 |
220 |
220 |
975 |
920 |
24-Φ30 |
1015 |
950 |
24-Φ33 |
|
900 |
920 |
1075 |
10 |
1115 |
1050 |
28-Φ33 |
||||
|
1000 |
1020 |
1175 |
1120 |
28-Φ30 |
1230 |
1160 |
28-Φ36 |
|||
|
1200 |
1220 |
1405 |
1340 |
32-Φ33 |
1455 |
1380 |
32-Φ40 |
|||
|
1400 |
1420 |
1630 |
1560 |
36-Φ36 |
1675 |
1590 |
36-Φ42 |
|||
|
1500 |
1520 |
1730 |
1660 |
- |
- |
- |
||||
|
1600 |
1620 |
1830 |
1760 |
40-Φ36 |
1915 |
1820 |
40-Φ48 |
|||
|
1800 |
1820 |
2045 |
1970 |
44-Φ40 |
2~55 |
2020 |
44-Φ48 |
|||
|
2000 |
2020 |
2265 |
2180 |
48-Φ42 |
2325 |
2230 |
48-Φ48 |
|||
|
2200 |
2220 |
2475 |
2390 |
52-Φ42 |
2550 |
2440 |
52-Φ56 |
|||
|
2400 |
2420 |
2685 |
2600 |
56-Φ42 |
2760 |
2650 |
56-Φ56 |
|||
|
2600 |
2620 |
600 |
240 |
240 |
2905 |
2810 |
60-Φ48 |
2960 |
2850 |
60-Φ56 |
|
2800 |
2820 |
3115 |
3020 |
64-Φ48 |
3180 |
3070 |
64-Φ56 |
|||
|
3000 |
3020 |
3315 |
3220 |
68-Φ48 |
3405 |
3290 |
68-Φ56 |
|||
|
3200 |
3220 |
3525 |
3430 |
72-Φ48 |
- |
- |
- |
|||
|
3400 |
3420 |
3735 |
3640 |
76-Φ48 |
- |
- |
- |
|||
|
3600 |
3620 |
3970 |
3860 |
80-Φ56 |
- |
- |
- |
|||


服务热线:

022-88527808

